Projeto arquitetônico 3 - Noturno 2021.1 - Projeto Habit@r 700s
- Matheus Rudo 
- 6 de nov. de 2021
- 1 min de leitura
Atualizado: 5 de jul. de 2022
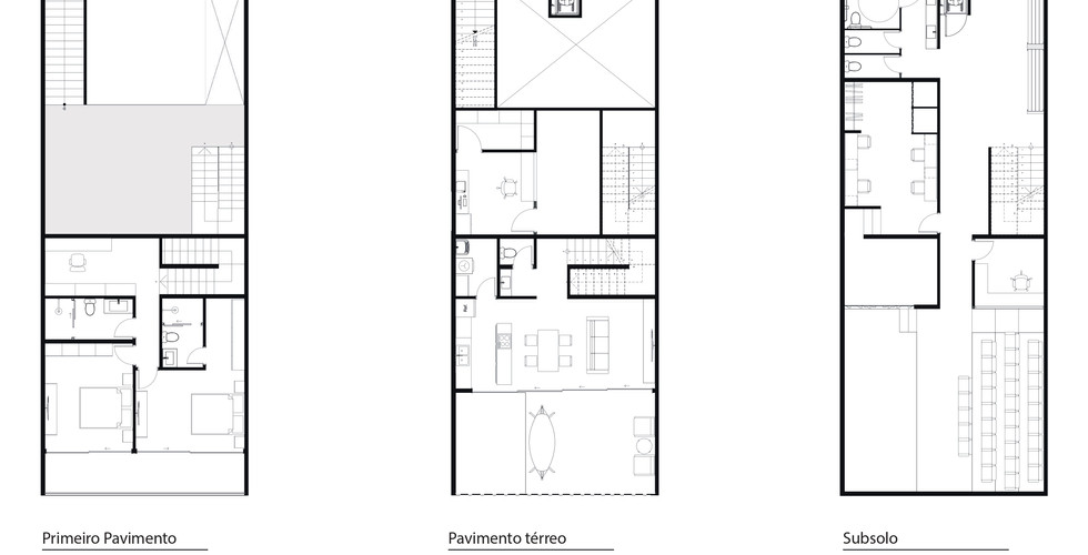
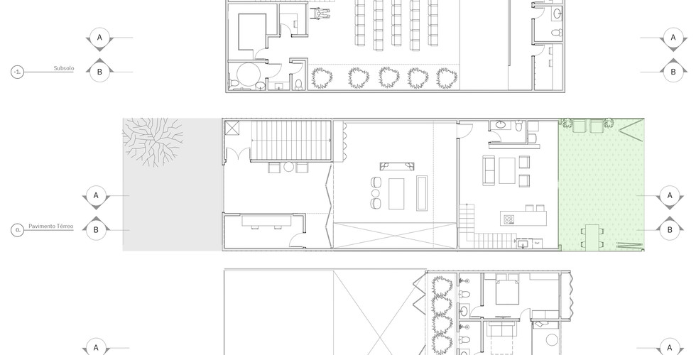
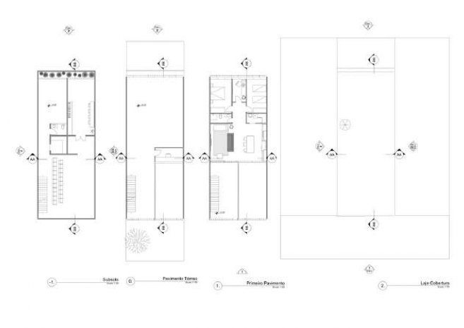
O Projeto Habitar 700’s expõe habitações unifamiliares, projetadas nos últimos dois meses por alunos do terceiro período noturno da FAU-UnB. Casas díspares, singulares em sua composição, emolduradas por parâmetros comuns: um mesmo lote, quadra 705 Sul, um mesmo cliente e um mesmo tema – reflexões sobre o habitat no século XXI, a urbanidade e as novas tipologias familiares. Ao desenvolver individualmente sua casa, cada alune buscou nas obras residenciais de arquitetos brasileiros e estrangeiros sua fonte referencial; nos novos modos de vida atuais os novos modos de morar; no histórico da habitação brasileira os indícios dos costumes e hábitos ainda presentes em nossa sociedade; na legislação urbanística da W3 parâmetros delimitadores; na inserção de um teatro de bolso no programa de necessidades. Um exercício com enfoque na discussão conceitual do projeto, nos questionamentos sobre sua implantação, na diversidade de usos da W3, na exploração plástica de sua volumetria, na flexibilidade do layout interno, na fluidez espacial, na segurança, na materialidade et cetera.
Professores orientadores: Ricardo Trevisan e Maribel Aliaga
Turma do semestre 2021.1
Post direcionado a reunir as entregas do primeiro trabalho dos alunos de PA3 Noturno 2021.1. Clique na imagem para expandi-la.






































































































































































































































































































































































































































































Comentários